CASAS

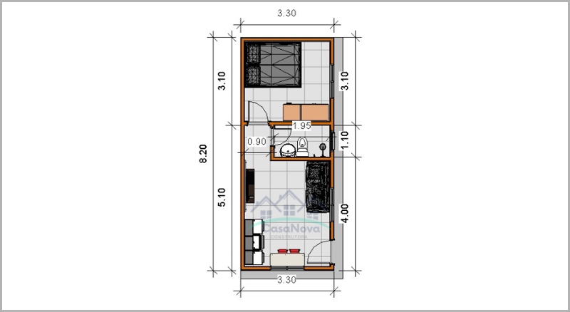
CASA 27m² - 1 Quarto

ITENS INCLUSOS:
• Elétrica interna;
• Hidráulica interna;
• Piso cerâmico em toda a casa;
• Janelas Blindex 1,20 x 1,00 m;
• Banheiro com cerâmica até o teto;
• Lavatório e vaso com caixa acoplada;
• Caixa de Água de 500 litros;
• Madeiramento do telhado em Eucalipto;
• Cobertura com Telha Portuguesa;
• Forro em PVC branco;
• Fundação até 50cm de altura.

ITENS NÃO INCLUSOS:
• Pintura;
• Calhas e Rufos;
• Calçadas;
• Projetos/Taxas e Aprovações;
• Aterro;
• Hidráulica, esgoto e elétrica externa;
• Faixa das janelas, revestimento em pedra.



SOLICITE SEU ORÇAMENTO